Премиальный коммерческий проект в центральной части Пафоса
Ключевые особенности проекта:
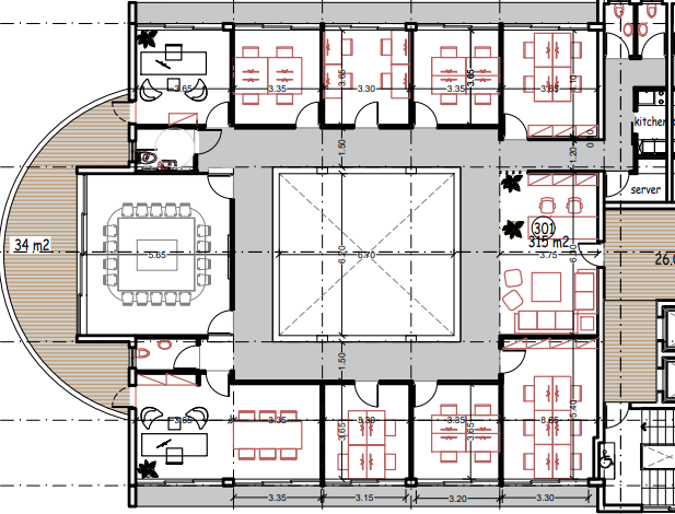
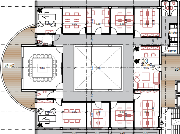
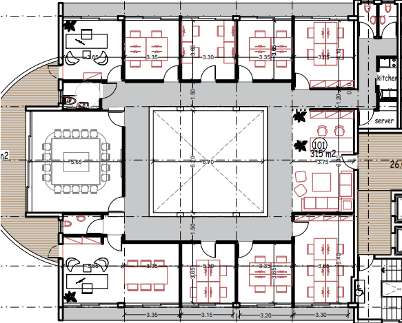
Три полноценных этажа с гибкими, функциональными планировками под офисы, шоурумы или коммерческие помещения
Каждый этаж площадью около 630 м²
Собственная парковка для посетителей и сотрудников
Выбор современных инженерных систем и качественных материалов
Продуманное размещение и высокая видимость — выгодное расположение для бизнеса
Безопасность и управление проектом под контролем компании без аутсорсинга
Идеально для: размещения офисов, шоурумов, представительств и других коммерческих активностей
