Расположен в престижном районе Героскипу, Пафос (Кипр), на возвышенности с живописными видами и лёгким доступом к морю и инфраструктуре города.
Площади:
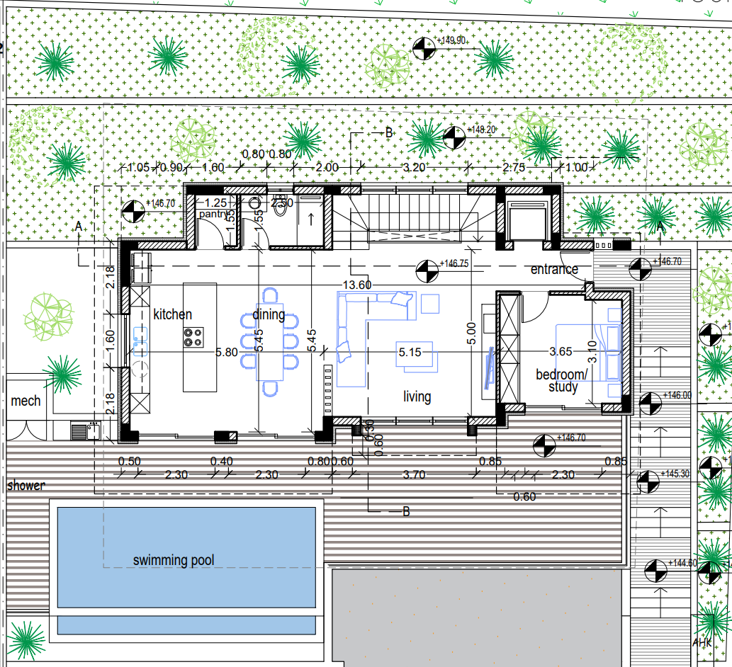
Общая площадь вилл — от 173 м² до 253 м²
Площадь участков — от 300 м² до 470 м²
Ключевые особенности проекта:
Современные виллы с 3, 4 и 5 спальнями, продуманными планировками и просторными жилыми зонами
Частные бассейны, персональная парковка, крытые террасы и сады для отдыха на свежем воздухе
Панорамные виды на горы и море
Современные инженерные решения: VRV-система кондиционирования, подогрев полов, энергоэффективные алюминиевые окна, солнечные панели
Высокое качество материалов, индивидуальная отделка интерьеров и возможность кастомизации
Спокойное, уединённое расположение при близости к школам, магазинам, гольф-клубу и пляжам
Срок сдачи: I квартал 2027 года
Идеально для: постоянного проживания, отдыха или инвестиции в надёжную недвижимость на Кипре
