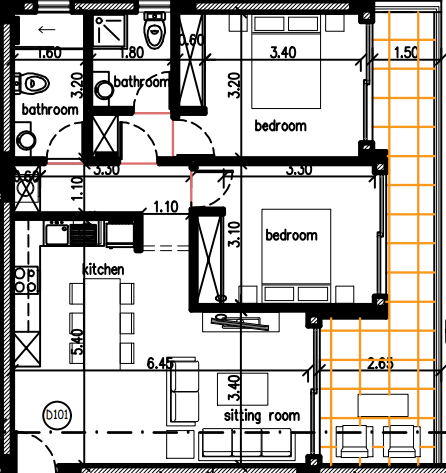
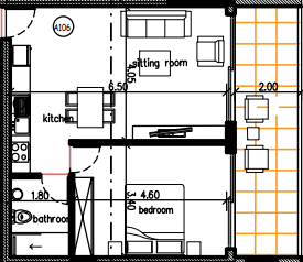
30+ апартаментов в пяти блоках: разнообразие планировок, включая 1-, 2-, 3-спальные квартиры и пентхаусы с просторными верандами и захватывающими панорамными видами на море.
Площади: от 52 до 137 м² + балконы/террасы от 12 до 32,5 м² — светлые и удобные пространства.
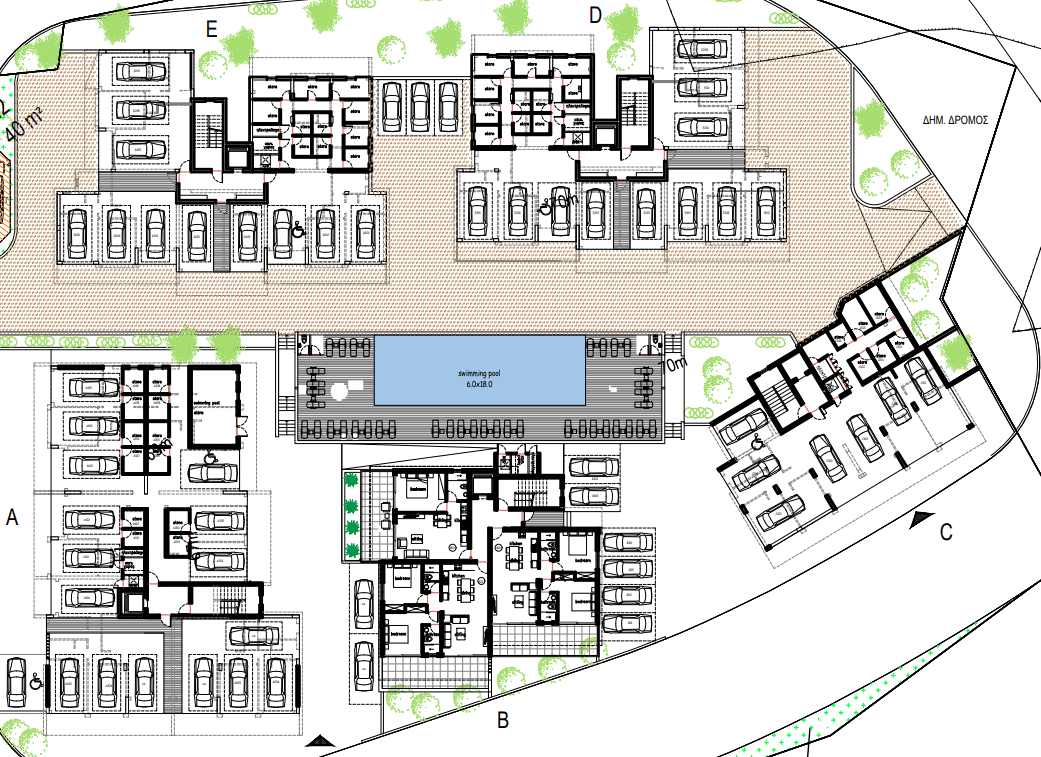
Бассейн: общий для всех резидентов, ухоженная закрытая территория.
Паркинг и кладовая: вместительные парковочные места, кладовые – включены в стоимость.
Современные технологии: VRF-система кондиционирования, тёплый пол, энергоэффективность класса А.
Комплектация: премиальная отделка, панорамные окна, продуманные планировки с максимальным естественным светом.
Локация: престижный район Героскипу (Пафос), шаговая доступность до пляжей, аэропорта, лучших школ, магазинов, ресторанов и культурных объектов.
Идеально для: постоянного проживания, семейного отдыха и доходных инвестиций — высокой арендной привлекательности, ликвидности и роста стоимости.
Panorama Apartments — сочетание максимального комфорта, современных стандартов строительства и выгодной локации на юго-западном побережье Кипра. Открытые продажи, гибкие варианты меблировки и быстрые сроки сдачи!
